top of page
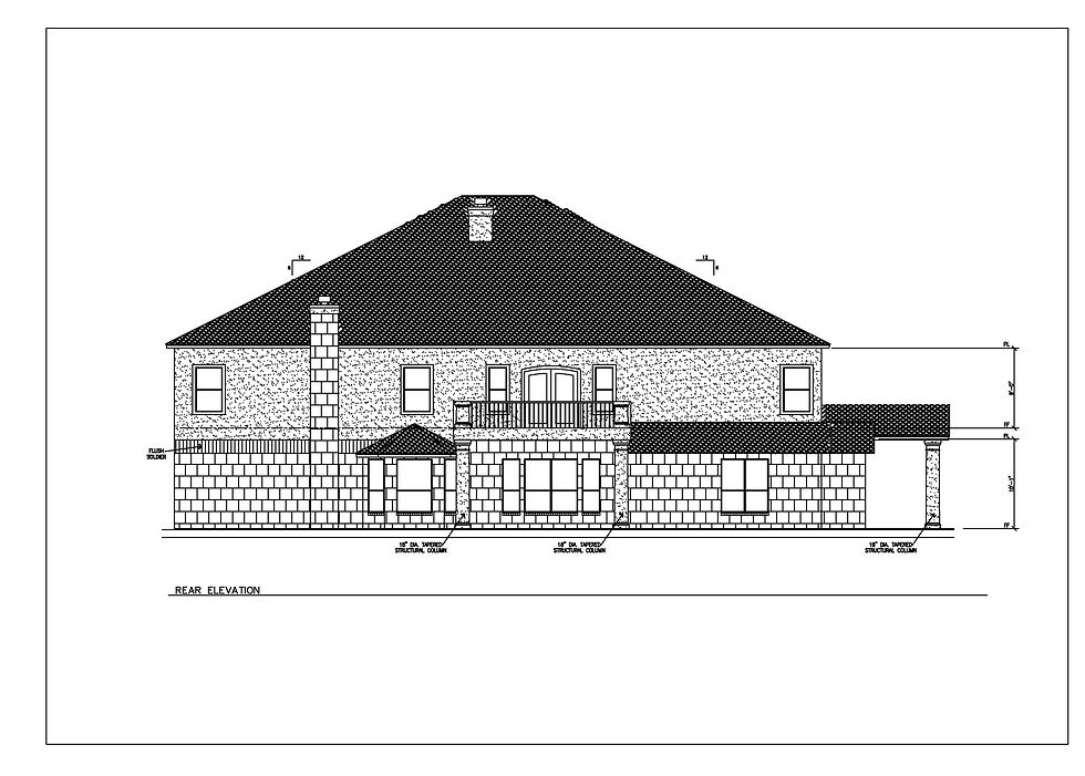
This beauty was designed for a large family and enough room to entertain even more! The construction documents were quite complex for this house. (These are not my photos.)

CP Home
Cedar Park, Tx

CP Home
Cedar Park, Tx

CP Home
Cedar Park, Tx

CP Home
Cedar Park, Tx

CP Home
Cedar Park, Tx

CP Home
Cedar Park, Tx

CP Home
Cedar Park, Tx

CP Home
Cedar Park, Tx

CP Home
Cedar Park, Tx
bottom of page

